Menu
Home
Blog
Sunday Worship
Baptisms
Weddings
Funerals
Organisations
Homegroups
Pastoral
Childrens Church
Youth Drop in
Youth Group
Baby & Toddler Group
St. Anne's School
Our team
History
Church hall
Parish news
Donate
Contact
St Anne's Church, Worksop
Blog
Services
& Worship
Sunday Worship
Baptisms
Weddings
Funerals
Get involved
Organisations
Pastoral
Baby & Toddler Group
Homegroups
St. Anne's School
Children & Youth
Childrens Church
Youth Drop in
Youth Group
About us
Our Team
History
Church Hall
The Bells
Parish News
Donate
Contact
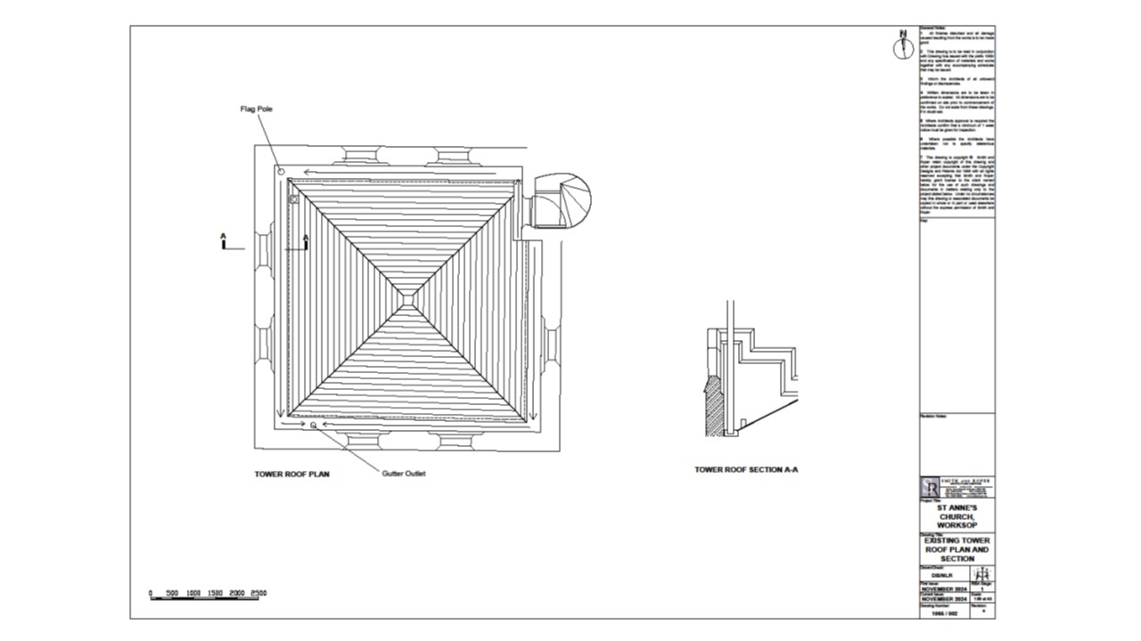
Public Notice – Plans & Documents
Please find below the plans for the repairs to the church tower.
Recent Posts
Vicar’s APCM Report 2024
Rev Dave’s Easter Message 2024
Rev Dave’s Christmas Message 2023
Rev Dave’s Easter Message 2023
Vicars APCM Report 2023
Rev Dave’s Christmas Message 2022
Rev Dave’s Easter Message 2022
Rev Dave’s Easter Message 2020
Thy Kingdom Come – May Newsletter
APCM – Vicars Report